Koopwoningen
Vinkensteynstraat 119, Den Haag
Vinkensteynstraat 117-119 Den Haag
Dit riante pand is gelegen in het gewilde Valkenboskwartier op fietsafstand van de binnenstad. Deze ruime bovenwoning (ca.93m2) was tot voor kort in gebruik als een.. Lees meer
Afgelopen op
01-11-2023, 20:00
Richtprijs
€ 450.000 Huidig bod
-
Totaal aantal biedingen: 0
Vinkensteynstraat 119, Den Haag
Specificaties
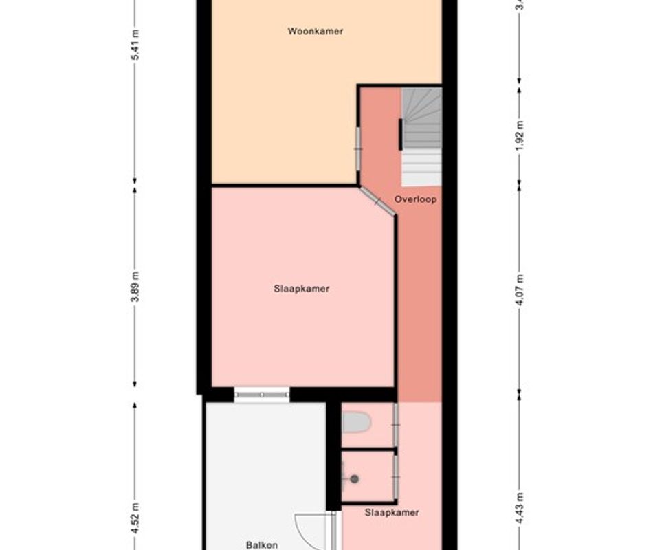
Woonoppervlak
183
ClimatControl
Ownership
OWNED
Aantallen
Slaapkamers
4
Aantal kamers
5
Afmetingen
Inhoud
595
Aantallen
Aantal toiletten
3
























