Ingetrokken
Ijsselmondestraat 45, Schiedam
NIEUW IN VERKOOP
Deze interessant geprijsde riante in Schiedam Zuid gelegen eengezinswoning met fijne tuin is zeer geschikt voor het grotere gezin. Na wat aanpassing en modernisering is jarenlang woo.. Lees meer
Afgelopen op
24-04-2023, 20:00
Richtprijs
€ 338.500 Huidig bod
-
Totaal aantal biedingen: 0
Ijsselmondestraat 45, Schiedam
Specificaties
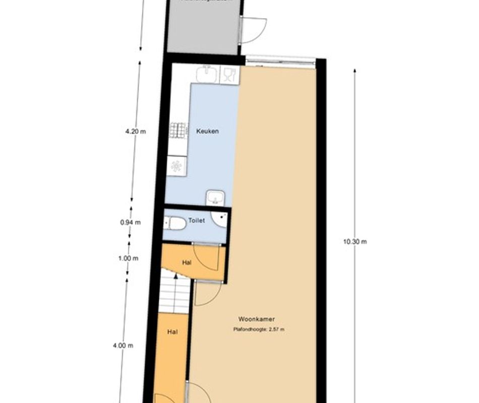
Woonoppervlak
135
ClimatControl
Ownership
OWNED
Aantallen
Slaapkamers
4
Aantal kamers
5
Afmetingen
Inhoud
465
Aantallen
Aantal badkamers
2
Aantal toiletten
3



































